防水錘排氣閥產品概述
FOX防水錘排氣閥是一種由閥體、閥蓋、浮球、導向桿、球座、浮板、排氣孔、緩沖板和外蓋及螺栓等組成,具有進排氣和微量排氣功能的防水錘空氣閥,其進排氣是在管路空管充水或管道排空時大量排氣和進氣,微量排氣則是在管道正常帶壓工作時,將管道內不斷析出的氣體及時排放,以減少因之可能產生的多種不利后果。本產品帶有緩沖盤片,確保平緩排氣,防止出現氣堵破壞的情況,其緩沖片在經歷高速排氣時所通過的面積以及小孔的數量可做調整。
FOX防水錘排氣閥還具有防水錘功能,即保證在管線出現水柱拉斷的負壓工況下,迅速大量排氣,以避免負壓的產生;而當隨后出現的水柱彌合工況時,閥門有效地限制排氣,通過延緩排氣時間,在管道當中造成空氣囊似的彈性壓縮空間,阻止快速的水柱彌合可能造成的壓力升高,即水錘。本產品是款能解決管道當中起伏點出現水柱拉斷式水錘的有效解決方案。
防水錘排氣閥部件材料
序號 | 部件名稱 | 材料名稱 | |||||
1 | 閥 體 | QT450 | WCB | CF8 | CF3 | CF8M | CF3M |
2 | 閥 蓋 | QT450 | WCB | CF8 | CF3 | CF8M | CF3M |
3 | 浮 球 | 304 | 304 | 304 | 304L | 316 | 316L |
4 | 導 向 桿 | 304 | 304 | 304 | 304L | 316 | 316L |
5 | 浮 板 | 304 | 304 | 304 | 304L | 316 | 316L |
6 | 緩 沖 板 | 304 | 304 | 304 | 304L | 316 | 316L |
7 | 螺 栓 | 304 | 304 | 304 | 304 | 316 | 316 |
防水錘排氣閥性能規范
公稱壓力PN(MPa) | 0.25 | 0.6 | 1.0 | 1.6 | 2.5 | 2.0 |
殼體強度試驗壓力(MPa) | 0.375 | 0.9 | 1.5 | 2.4 | 3.75 | 3.0 |
高壓水密封試驗壓力(MPa) | 0.275 | 0.66 | 1.1 | 1.76 | 2.75 | 2.2 |
低壓水密封試驗壓力(MPa) | 0.02 | 0.02 | 0.02 | 0.02 | 0.02 | 0.02 |
法蘭標準 | GB/T 17241.6-2008、JB/T 79-2015、GB/T 9113-2010、ASME B16.5-2017等 | |||||
檢驗試驗 | GB/T 13927-2008、API 598-2016 | |||||
適用介質 | 清水、原水或物理化學性質類似于水的其他液體 | |||||
工作溫度 | 0℃ ~ 80℃ | |||||
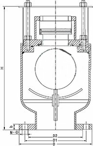
防水錘排氣閥外形尺寸
公稱壓力 PN(MPa) | 公稱通徑 DN(mm) | 尺寸(mm) | |||||
H | D | D1 | D2 | b-f | N-Φ | ||
1.6 | 50 | 350 | 160 | 125 | 100 | 16-3 | 4-18 |
80 | 380 | 195 | 160 | 135 | 20-3 | 8-18 | |
100 | 400 | 215 | 180 | 155 | 20-3 | 8-18 | |
150 | 480 | 280 | 240 | 210 | 24-3 | 8-23 | |
200 | 550 | 335 | 295 | 265 | 26-3 | 12-23 | |
250 | 630 | 405 | 355 | 320 | 30-3 | 12-25 | |
300 | 700 | 460 | 410 | 375 | 30-4 | 12-25 | |
350 | 750 | 520 | 470 | 435 | 34-4 | 16-25 | |
表中只列出了部分JB/T 79-2015標準PN16法蘭連接外形尺寸。如需其他規格尺寸,請咨詢汗越閥門! | |||||||
防水錘排氣閥結構圖

如果你需訂購我廠排氣閥產品,煩請提供型號數據,公稱通徑、公稱壓力、閥體和閥內件材質、法蘭執行標準及法蘭密封面形式等,如有特殊要求,咨詢時請詳細說明。
網站首頁