保溫球閥產品概述
保溫球閥通常采用在閥體的外表面焊接金屬夾套以便于流通加熱流體的辦法,來防止被輸送物料結晶或減低介質粘度,增加流動性,避免閥門被堵塞和減小工程的動力消耗,即使外界溫度降到凝固點或零度以下,其仍然開關靈活。該閥一般為整體式結構設計,球體和閥座從側面裝入,并用端蓋頂住和壓緊,球形體為浮動式,保溫夾套用鑄件或鋼板沖壓焊接而成,從而與殼體外部構成加熱夾層,并在它的不同側設置有供熱水、蒸汽或者熱油等引入或排出的接管口,接管口端部連接形式可根據工況需要設計成法蘭或管螺紋連接。本產品具有很好的保溫性能,因此,特適用于輸送如尿素等易于結晶的物料或者粘稠流體(如含蠟質和瀝青較高的石油等)場合。
保溫球閥部件材料
| 序號 | 部件名稱 | 材料名稱 | ||||
| 1 | 閥 體 | WCB | CF8 | CF3 | CF8M | CF3M |
| 2 | 端 蓋 | WCB | CF8 | CF3 | CF8M | CF3M |
| 3 | 球 體 | 2Cr13 | 304 | 304L | 316 | 316L |
| 4 | 閥 座 | R-PTFE、PTFE、TEFLON、NYLON、PPL、PEEK、DEVLON、SS+HF | ||||
| 5 | 閥 桿 | 2Cr13 | 304 | 304L | 316 | 316L |
| 7 | 填料壓蓋 | WCB | CF8 | CF3 | CF8M | CF3M |
| 8 | 填 料 | GRAPHITE、R-PTFE、PTFE、TEFLON、PCTFE | ||||
| 9 | 保溫夾套 | Q235B | 304 | 304 | 304 | 304 |
| 10 | 螺 栓 | 35CrMoA | 304 | 304 | 316 | 316 |
| 11 | 螺 母 | 30CrMoA | 304 | 304 | 316 | 316 |
保溫球閥技術規范
| 公稱壓力PN | 10 | 16 | 25 | 40 | 64 |
| 殼體試驗壓力(MPa) | 1.5 | 2.4 | 3.75 | 6.0 | 9.6 |
| 高壓液體密封試驗壓力(MPa) | 1.1 | 1.76 | 2.75 | 4.4 | 7.04 |
| 低壓氣體密封試驗壓力(MPa) | 0.6 | 0.6 | 0.6 | 0.6 | 0.6 |
| 設計制造 | JB/T 13458-2018 保溫夾套閥門 | ||||
| 法蘭尺寸 | JB/T 79、GB/T 9113、HG/T 20592、HG/T 20615、SH/T 3406、ASME B16.5 | ||||
| 結構長度 | JB/T 13458-2018 保溫夾套閥門 | ||||
| 檢驗試驗 | GB/T 13927、GB/T 26480、JB/T 9092、API 598 | ||||
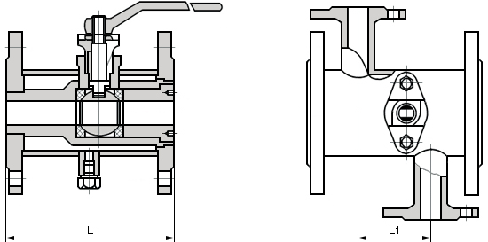
保溫球閥主要尺寸
| 公稱壓力 PN(MPa) | 公稱尺寸 DN(mm) | 連接端規格 A×B(mm) | 結構尺寸(mm) | 保溫加熱流體的入口及出口 | ||
| L | L1 | 螺紋連接 | 法蘭連接 | |||
| 1.6 ~ 2.5 | 15 | 15×32 | 108 | 45 | G ? | DN15 |
| 15 | 15×40 | 108 | 45 | G ? | DN15 | |
| 20 | 20×40 | 117 | 55 | G ? | DN15 | |
| 25 | 25×50 | 127 | 65 | G ? | DN15 | |
| 32 | 32×50 | 140 | 78 | G ? | DN15 | |
| 40 | 40×65 | 165 | 85 | G ? | DN15 | |
| 40 | 40×80 | 165 | 85 | G ? | DN15 | |
| 50 | 50×80 | 178 | 100 | G ? | DN15 | |
| 65 | 65×100 | 203 | 120 | G ? | DN20 | |
| 80 | 80×125 | 229 | 135 | G ? | DN20 | |
| 100 | 100×150 | 254 | 155 | G ? | DN20 | |
| 125 | 125×200 | 267 | 185 | G ? | DN20 | |
| 150 | 150×200 | 292 | 210 | G ? | DN20 | |
| 150 | 150×250 | 292 | 210 | G ? | DN20 | |
| 200 | 200×250 | 330 | 265 | G ? | DN25 | |
| 200 | 200×300 | 330 | 265 | G ? | DN25 | |
| 表中為一體式浮動球閥參數,其中A為法蘭內徑的公稱尺寸,B為法蘭其他尺寸的公稱尺寸。 | ||||||
保溫球閥結構圖

如果你需訂購我廠保溫球閥系列產品,咨詢時煩請注明類型、公稱通徑、公稱壓力、閥體和內件材質、介質溫度等。本產品可根據不同的使用介質與工況選用金屬密封或軟密封等。
網站首頁