310S不銹鋼球閥產品概述
310S不銹鋼球閥又叫2520球閥,其閥體、連接體、閥桿、球體以及金屬閥座等部件全采用高鉻鎳奧氏體耐熱不銹鋼310S或S31008及0Cr25Ni20等鑄造或鍛造而成,該材料在氧化介質中有優良的耐腐蝕性,同時具有良好的高溫力學性能,因此,310S不銹鋼球閥被大量應用于800℃左右化工工業、航空航天行業的耐熱控件以及核燃料后處理設備的耐蝕控制。
310S不銹鋼球閥部件材料
| 序號 | 部件名稱 | 材料名稱 | |||
| 1 | 閥 體 | 310S | S31008 | 2520 | 0Cr25Ni20 |
| 2 | 連 接 體 | 310S | S31008 | 2520 | 0Cr25Ni20 |
| 3 | 閥 座 | 310S+HF | S31008+HF | 2520+HF | 0Cr25Ni20+HF |
| 4 | 球 體 | 310S+HF | S31008+HF | 2520+HF | 0Cr25Ni20+HF |
| 5 | 閥 桿 | 310S | S31008 | 2520 | 0Cr25Ni20 |
| 6 | 填 料 | GRAPHITE | GRAPHITE | GRAPHITE | GRAPHITE |
| 7 | 填料壓蓋 | 310S | S31008 | 2520 | 0Cr25Ni20 |
| 8 | 螺 柱 | A193 B8 | A193 B8 | 06Cr19Ni10 | 06Cr19Ni10 |
| 9 | 螺 母 | A194 8 | A194 8 | 06Cr19Ni10 | 06Cr19Ni10 |
310S不銹鋼球閥技術規范
| 公稱壓力PN(MPa) | 1.6 | 2.5 | 4.0 | 6.4 |
| 殼體試驗壓力(MPa) | 2.4 | 3.75 | 6.0 | 9.6 |
| 液體高壓密封試驗壓力(MPa) | 1.76 | 2.75 | 4.4 | 7.04 |
| 氣體低壓密封試驗壓力(MPa) | 0.6 | 0.6 | 0.6 | 0.6 |
| 設計制造 | GB/T 12237、GB/T 21385、API 6D、API 608、ASME B16.34 | |||
| 結構長度 | GB/T 12221、API 6D、ASME B16.10 | |||
| 法蘭尺寸 | JB/T 79、GB/T 9113、HG/T 20592、HG/T 20615、SH/T 3406、ASME B16.5等 | |||
| 檢驗試驗 | GB/T 26480、JB/T 9092、API 598、API 6D | |||
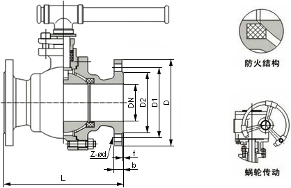
310S不銹鋼球閥主要尺寸
| 公稱壓力 PN | 公稱通徑 DN | 外形及連接尺寸/mm | |||||
| L | D | D1 | D2 | b-f | Z-?d | ||
| 16 | 15 | 130 | 95 | 65 | 45 | 16-2 | 4-14 |
| 20 | 140 | 105 | 75 | 58 | 18-2 | 4-14 | |
| 25 | 150 | 115 | 85 | 68 | 18-2 | 4-14 | |
| 32 | 165 | 140 | 100 | 78 | 18-2 | 4-18 | |
| 40 | 180 | 150 | 110 | 88 | 18-2 | 4-18 | |
| 50 | 200 | 165 | 125 | 102 | 18-2 | 4-18 | |
| 65 | 220 | 185 | 145 | 122 | 18-2 | 8-18 | |
| 80 | 250 | 200 | 160 | 138 | 20-2 | 8-18 | |
| 100 | 280 | 220 | 180 | 158 | 20-2 | 8-18 | |
| 125 | 320 | 250 | 210 | 188 | 22-2 | 8-18 | |
| 150 | 360 | 285 | 240 | 212 | 22-2 | 8-22 | |
| 200 | 400 | 340 | 295 | 268 | 24-2 | 12-22 | |
| 250 | 450 | 405 | 355 | 320 | 26-2 | 12-26 | |
| 表中為部分HG/T 20592-2009標準PN16法蘭連接外形尺寸。如需其他規格尺寸,請咨詢汗越閥門技術部! | |||||||
310S不銹鋼球閥結構圖

如果你需訂購我廠不銹鋼球閥產品,咨詢時煩請提供公稱通徑、公稱壓力、閥體材質、內件材料、使用介質、工作溫度、法蘭標準及法蘭密封面形式等,本產品根據不同工況需求有浮動球和固定球等多種形式可供選擇。
網站首頁