HXF2帶雙接管阻火呼吸閥產品概述
HXF2帶雙接管阻火呼吸閥的吸入和呼出口采用所需的接管設計,一般安裝在固定儲罐頂部用于防止真空及超壓對罐體的損壞,它不僅能對石油儲罐內外壓差進行自動調節,而且能減少罐內介質揮發損耗。該閥是利用彈簧限位閥板,由正負壓力決定或呼或吸,它具有泄放正壓和負壓兩方面功能,當罐內承受正壓時,呼氣閥打開呼出氣體,泄放正壓;當油罐承受負壓時,吸氣閥打開吸入氣體,泄放負壓,由此保證壓力在范圍之內,確保罐體安全。本產品集合了呼吸閥與儲罐阻火器的雙重作用,具有體積小、重量輕、結構緊湊、通氣量大、泄漏量小等特點,且密封性能好,特別是高空作業時,檢修、清洗閥內的阻火芯件及正負壓閥盤非常方便。
HXF2帶雙接管阻火呼吸閥部件材料
序號 | 部件名稱 | 材料名稱 | ||||
1 | 閥 體 | WCB | CF8 | CF3 | CF8M | CF3M |
2 | 閥 蓋 | WCB | CF8 | CF3 | CF8M | CF3M |
3 | 導 桿 | 304 | 304 | 304L | 316 | 316L |
4 | 閥 座 | 304 | 304 | 304L | 316 | 316L |
5 | 閥 盤 | 304 | 304 | 304L | 316 | 316L |
6 | 阻 火 層 | 304 | 304 | 304L | 316 | 316L |
7 | 密 封 件 | PTFE | PTFE | PTFE | PTFE | PTFE |
8 | 接 管 | 20# | 304 | 304L | 316 | 316L |
HXF2帶雙接管阻火呼吸閥技術規范
呼吸閥開啟壓力等級代號 | A | B | C | D | E |
呼吸閥開啟壓力ps(Pa) | +355,-295 | +665,-295 | +980,-295 | +1375,-295 | +1765,-295 |
設計制造 | SY/T 0511.1-2010 石油儲罐附件 第1部分:呼吸閥 | ||||
法蘭標準 | JB/T 79、GB/T 9113、HG/T 20592、HG/T 20615、SH/T 3406、ASME B16.5等 | ||||
檢驗試驗 | SY/T 0511.1-2010 石油儲罐附件 第1部分:呼吸閥 | ||||
操作溫度 | -30℃ ~ 60℃ | ||||
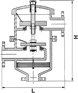
HXF2帶雙接管阻火呼吸閥外型尺寸
公稱壓力 PN(MPa) | 公稱通徑 DN(mm) | 尺寸(mm) | ||||||
L | H | D | D1 | D2 | C-f | n-d | ||
1.0 | 50 | 320 | 650 | 165 | 125 | 102 | 18-2 | 4-?18 |
80 | 450 | 750 | 200 | 160 | 138 | 20-2 | 8-?18 | |
100 | 450 | 950 | 220 | 180 | 158 | 20-2 | 8-?18 | |
150 | 620 | 1100 | 285 | 240 | 212 | 22-2 | 8-?22 | |
200 | 750 | 1200 | 340 | 295 | 268 | 24-2 | 8-?22 | |
250 | 850 | 1500 | 395 | 350 | 320 | 26-2 | 12-?22 | |
300 | 1100 | 1750 | 445 | 400 | 370 | 26-2 | 12-?22 | |
注:以上為HG/T 20592-2009標準PN10整體鋼制管法蘭尺寸。 | ||||||||
HXF2帶雙接管阻火呼吸閥結構圖

如果你需訂購我廠呼吸閥產品,咨詢時煩請提供規格型號,公稱通徑、公稱壓力,閥體和內件材質,環境操作溫度、使用介質、正壓(呼出壓力)、負壓(吸入壓力)、法蘭標準等,如有其他技術要求,咨詢時請詳細說明。
網站首頁